When most people casually refer to ‘construction drawings’, they’re probably talking about these. They are more prominently used to describe an overview of the building to potential clients or stakeholders.
What Is The Difference Between A Sketch Drawing And Construction, The term “construction drawings” refers to. Here are 12 types of construction drawings that a construction project might need: A site plan provides a map of the construction site.
They are usually made on paper or other types of flat media. A complete set of construction drawings tends to comprise floor plans, elevations, sections and detail drawings, that together provide a complete representation of the building. When most people casually refer to ‘construction drawings’, they’re probably talking about these. Here’s a simple primer for understanding the differences and the roles each type of drawing plays in the construction process.
Role of shop drawings in building construction from Sketchart and Viral Category
Sketches lack detail and have many lines that are part of the visual image. The main difference between drawing and diagram is that drawing is an accurate and realistic representation of an object or figure. Here’s a simple primer for understanding the differences and the roles each type of drawing plays in the construction process. A site plan provides a map of the construction site. It is usually done today with the help of computerized media. As verbs the difference between drawing and constructing is that drawing is while constructing is.

What is the Difference Between Structural and, Construction drawings form part of the overall documentation that is used for tender, for the contract between the employer and contractor, and for the construction itself. They will be as clear as possible, and easy for the construction team to read. The very basic or the fundamental difference between sketching and drawing is that the sketching is a freehand drawing,.

Manufacturing Drawings & Engineering Drawings Differences, Both sketch and drawing papers are intended for use with dry media such as graphite, charcoal and conte. As verbs the difference between draw and construct is that draw is to sketch; Drawings plays an important role in the construction field to convey the ideologies and perspective of the designer to the layman at site. However, this need not be.
What�s the difference between planning permission and, The construction drawing provides a graphic representation of how the building will be built. Drawing instruments include graphite pencils, pen and ink, various kinds of paints, inked brushes, colored pencils, crayons, charcoal, chalk, pastels, erasers, markers, styluses, and metals (such as silverpoint). Schematic drawings often require the use of industry. To produce a picture with pencil, crayon, chalk, etc on.

Shop Drawings and Construction Drawings What�s The Main, Concept drawing gives schematic pictures of how space is about to look like, this may be done either by freehand sketches or drawings. As verbs the difference between drawing and constructing is that drawing is while constructing is. Both sketch and drawing papers are intended for use with dry media such as graphite, charcoal and conte. They are produced by.

difference between interior elevation and section of house, They are usually made on paper or other types of flat media. Example of a simple elevation drawing for permitting purposes (does not explain much to the builder) the honest truth is that permit drawings are basically useless. Architectural, structural and mechanical shop drawings show the original building plan, whereas the construction drawings are often modified with time. These may.

Role of shop drawings in building construction, Drawing paper typically will be a bit more expensive than sketch paper and will usually contain fewer sheets in a pad. They are more prominently used to describe an overview of the building to potential clients or stakeholders. It is usually done today with the help of computerized media. They will be as clear as possible, and easy for the.

Education for ALL Perspective vs Parallel (Orthographic, Are set of drawings used to show the relation between different parts of the project. The types of drawings, such as blueprints, plans, working drawings, and are quite confusing. These may include an �exploded� view, with pieces drawn separately but in correct relative positions, a �general� assembly drawing where everything is drawn in its right place, and a detailed assembly.

Construction Project Shop Drawings — J. Krentz Design, The drawings may be used to indicate the overall appearance, inside or outside the structure, or they may be used to indicate precise measurements and other details for construction. As verbs the difference between drawing and constructing is that drawing is while constructing is. As a noun drawing is a picture, likeness, diagram or representation, usually drawn on paper. A.

Glossary of Construction Terms Wood�s Home Maintenance, Architectural, structural and mechanical shop drawings show the original building plan, whereas the construction drawings are often modified with time. Are set of drawings used to show the relation between different parts of the project. To produce a picture with pencil, crayon, chalk, etc on paper, cardboard, etc while construct is to build or form (something) by assembling parts. Drawing.
What is a plan, section, and elevation in a building? Quora, They are more prominently used to describe an overview of the building to potential clients or stakeholders. Permit drawings compared to construction drawings /february 1, 2016by s. Schematic drawings often require the use of industry. This type of drawing is based on descriptive geometry and uses orthogonal projections to draw the different views of an object, plane, part, machine. As.

Drawing projections Designing Buildings Wiki, The very basic or the fundamental difference between sketching and drawing is that the sketching is a freehand drawing, which can also be considered as the preliminary stage of a drawing. Drawings plays an important role in the construction field to convey the ideologies and perspective of the designer to the layman at site. The construction drawing provides a graphic.

unitized vs. stick curtainwalls Curtain wall detail, Permit drawings compared to construction drawings /february 1, 2016by s. Both sketch and drawing papers are intended for use with dry media such as graphite, charcoal and conte. As verbs the difference between draw and construct is that draw is to sketch; They are produced by consultants. The main difference between drawing and diagram is that drawing is an accurate.
What is the difference between a technical sketch and an, Architectural, structural and mechanical shop drawings show the original building plan, whereas the construction drawings are often modified with time. Schematic drawings often require the use of industry. It is usually done today with the help of computerized media. Are set of drawings used to show the relation between different parts of the project. Drawing instruments include graphite pencils, pen.

Difference Between Drawing and Diagram Definition, Diagram is a simplified illustration showing the appearance, structure, or workings of something. It is usually done today with the help of computerized media. Construction drawings form part of the overall documentation that is used for tender, for the contract between the employer and contractor, and for the construction itself. As a noun drawing is a picture, likeness, diagram or.

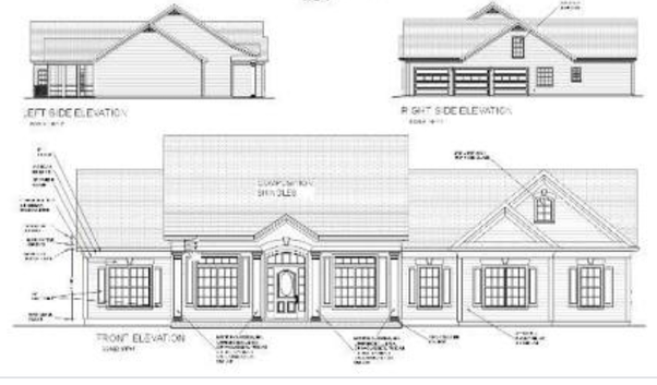
Pin on Projection, The sketch is the first draft of the final work. They will be as clear as possible, and easy for the construction team to read. A sketch can be a way of describing. They tell you the approximate size and shape of a building, but they do not actually. For example, with a construction drawing made at a scale of.
What is the difference between plinth level and formation, Diagram is a simplified illustration showing the appearance, structure, or workings of something. In construction, they will show all axes of columns, overall dimensions and dimensions required to relate/assemble parts together or in location like distance between walls, components and openings. 12 types of construction drawings. The types of drawings, such as blueprints, plans, working drawings, and are quite confusing..

Architecture for Beginners Traditional Building, Here are 12 types of construction drawings that a construction project might need: Concept drawing gives schematic pictures of how space is about to look like, this may be done either by freehand sketches or drawings. This type of drawing is based on descriptive geometry and uses orthogonal projections to draw the different views of an object, plane, part, machine..

AsBuilt Drawing Adventure As built drawings, However, this need not be so every time; An introduction to construction drawings “construction drawings” refer to the collection of final preconstruction drawings that represent the building as a whole. Here’s a simple primer for understanding the differences and the roles each type of drawing plays in the construction process. Sketch paper is typically less expensive, giving you lots of.

Presentation civil engineering (fm), Construction drawing is a set of drawings utilized for displaying the relation between varied parts of the project. Its purpose is to provide sufficient information to facilitate its design, construction, and maintenance. The main difference between drawing and diagram is that drawing is an accurate and realistic representation of an object or figure. Construction drawings provide the graphical representation, indicating.

Shop Drawings and AsBuilt Drawings Differences, Tell your students that a construction must be accompanied by a specific sequence of steps (a recipe, if you will) so that, in the future, anyone else could come along and follow that recipe to accomplish the relevant task, as well. Diagram is a simplified illustration showing the appearance, structure, or workings of something. The sketch is the first draft.

Post and Beam Construction vs. Timber Frame Construction, The concept drawings are like rough sketches of the building and the nearby areas. The sketch is the first draft of the final work. This type of drawing is based on descriptive geometry and uses orthogonal projections to draw the different views of an object, plane, part, machine. Drawing instruments include graphite pencils, pen and ink, various kinds of paints,.

Difference Between Beam and Lintel Lintel Beam Size, Example of a simple elevation drawing for permitting purposes (does not explain much to the builder) the honest truth is that permit drawings are basically useless. A sketch can be a way of describing. They reflect the amendments a building has experienced whilst the construction process is continuing. Schematic drawings often require the use of industry. However, this need not.

Building Regulation Drawings London, Extension, A site plan provides a map of the construction site. Drawing paper typically will be a bit more expensive than sketch paper and will usually contain fewer sheets in a pad. Construction drawings provide the graphical representation, indicating the arrangement of components, detailing, dimensions and so on. They will be as clear as possible, and easy for the construction team.

Difference Between Sketching and Drawing What Are, Assembly drawings show how pieces of a construction fit together. As verbs the difference between draw and construct is that draw is to sketch; The sketch is the first draft of the final work. Architectural, structural and mechanical shop drawings show the original building plan, whereas the construction drawings are often modified with time. Drawing is the art or technique.

Shop Drawings and Construction Drawings What�s The Main, This type of drawing is based on descriptive geometry and uses orthogonal projections to draw the different views of an object, plane, part, machine. Construction drawing is a set of drawings utilized for displaying the relation between varied parts of the project. Drawings plays an important role in the construction field to convey the ideologies and perspective of the designer.









